• 6 Pièces
  • 4 Chambre(s)
  • 4 Salle de bains
  • 182 m2
  • Construction 2003

Description

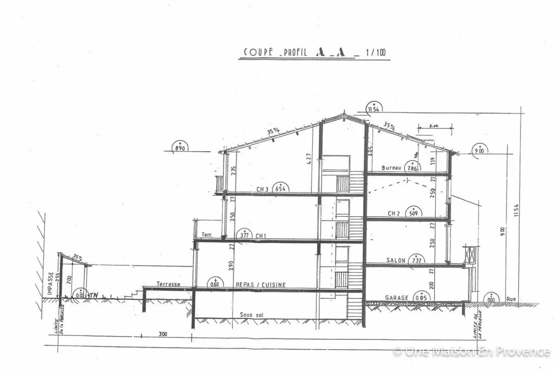
Au cœur du charmant village de Vallabrègues, atypique maison de ville agrémentée d'un bel espace extérieur et d'un garage avec portail automatique. Au rez-de-chaussée, en communication avec la cuisine à manger se trouve une agréable terrasse parée de bois exotique et d'une pergola. Au premier étage le salon est quant à lui équipé d'une bibliothèque. Se trouve ensuite sur des demi-niveaux les 4 suites de la maison. Au sous sol, une vaste lingerie et les toilettes invités. Un escalier central de belle facture distribue de façon harmonieuse les différentes pièces de cette très originale maison. "Les informations sur les risques naturels auxquels ce bien est exposé sont disponibles sur le site Géorisque http://georisques.gouv.fr"

Surface totale habitable : 182 m2 env.
6 pièces / 4 chambres /

2 Salles de bain
2 Salles d'eau
5 Cabinets de toilette

Séjour
32 m2

Terrain
115 m2

Terrasse
41 m2

Garage
26 m2

Balcon
3 m2

Construction : Semi-traditionnelle (2003)
État : Très bon

Exposition : Est-Ouest
Vue : Cour

Chauffage principal : Central fioul
Chauffage complémentaire : Climatisation réversible

Alimentation en eau : Eau de ville
Assainissement : Tout à l'égout

Baie vitrée
Balcon
Belle hauteur sous plafonds
Climatisation
Double vitrage
Garage
Interphone
Quartier calme
Système aspirateur mural intégré
Terrasse
Volet electrique
poêle à bois
Proximité
Village
Tous commerces
Ecole
Classe énergétique : C 117 kWhEP/m2.an
Classe GES : C 26 kgeqCO2/m2.an
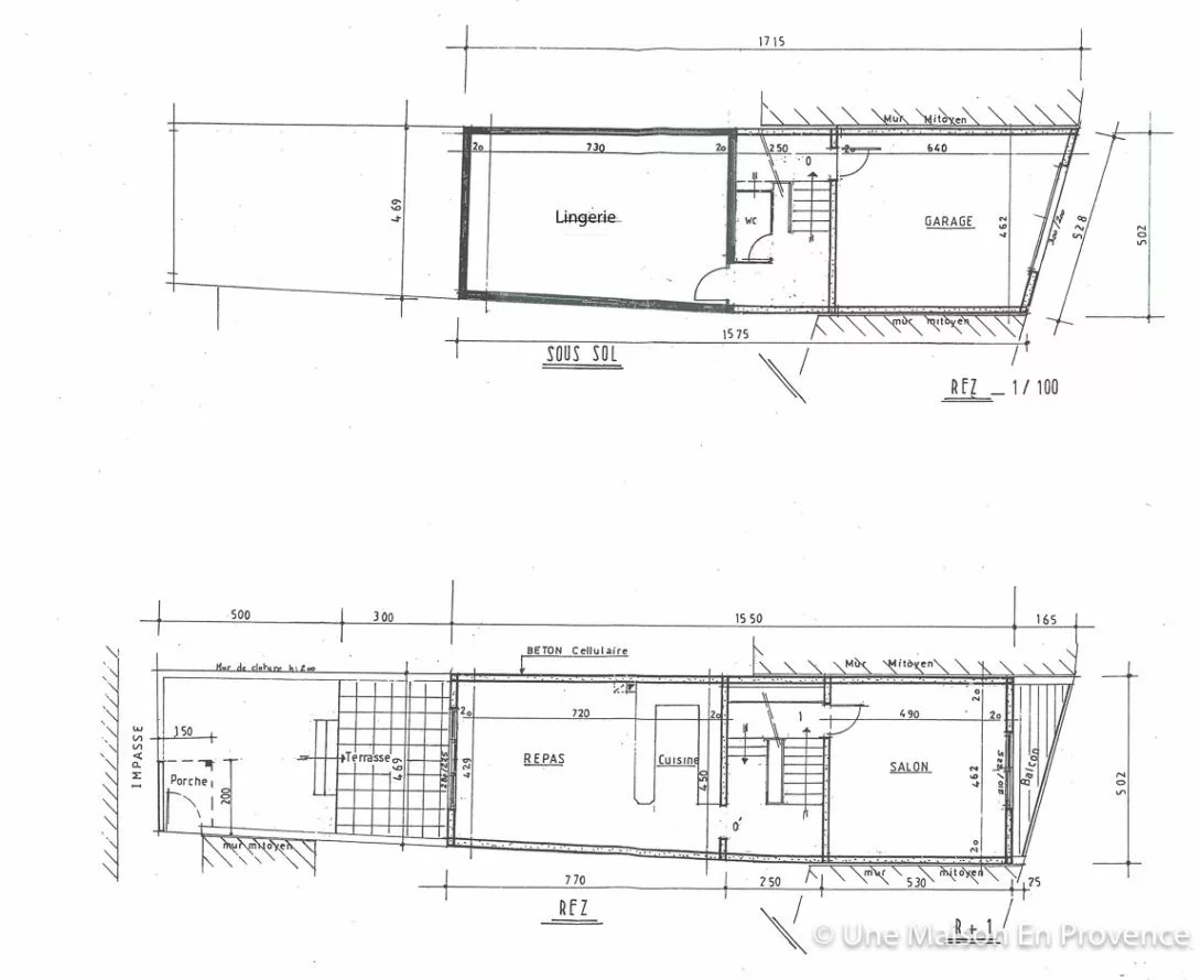
Rez-de-chaussée
Pièce Surface Informations
Hall d'entrée 10 m2
Sol
Carrelage
Commentaire
Communique avec le garage et la SAM/cuisine
Salle à manger / Cuisine 32 m2
Sol
Carrelage
Équipements
Poêle
Commentaire
Ouverte sur terrasse via grande baie vitrée
Garage 28 m2
Sol
Chape béton
Commentaire
Emplacement tableau electrique / portail automatique
Sous-sol
Pièce Surface Informations
Dégagement 5 m2
Sol
Carrelage
Équipements
Placard mural
Toilettes 1.5 m2
Sol
Carrelage
Équipements
1 vasque
Chaufferie 30 m2
Sol
Carrelage
Équipements
1 vasque
Commentaire
Emplacement chaudière Chappée/centrale aspiration/mach. à laver
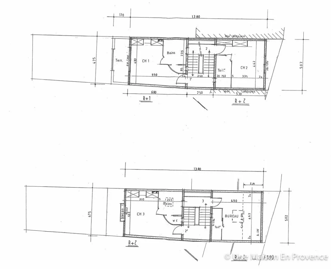
Premier étage
Pièce Surface Informations
Salon 22 m2
Sol
Parquet
Commentaire
Avec bibliothèque intégrée / ouvert sur balcon
Deuxième étage
Pièce Surface Informations
Chambre 1 23.5 m2
Sol
Parquet
Équipements
Toilettes, Porte serviettes séchant, Placard mural, Climatisation, Baignoire, 1 vasque
Commentaire
Avec SDB attenante et terrasse
Troisième étage
Pièce Surface Informations
Chambre 2 22 m2
Sol
Parquet
Équipements
Toilettes, Porte serviettes séchant, Placard mural, 1 vasque
Commentaire
Avec SDE attenante
Quatrième étage
Pièce Surface Informations
Chambre 3 23.5 m2
Sol
Parquet
Équipements
Toilettes, Porte serviettes séchant, Placard mural, Climatisation, Baignoire, 1 vasque
Commentaire
Avec SDB attenante
Cinquième étage
Pièce Surface Informations
Chambre 4 20 m2
Sol
Parquet
Équipements
Toilettes, Porte serviettes séchant, Douche, 1 vasque
Commentaire
Avec SDE attenante / pièce mansardée avec velux

David Feraux

1 place Jean Jaures, 30400 Villeneuve les Avignon
+33 (0)6 11 77 34 18

Contactez-moi

Programmer un rendez-vous?
Appeler WhatsApp

Comparer les annonces

David Feraux