- 4 Pièces
- 3 Chambre(s)
- 2 Salle de bains
- 133 m2
- Construction 2006
Description
Surface totale habitable : 133 m2 env.
4 pièces /
3 chambres /
1 Salle de bain
1 Salle d'eau
2 Cabinets de toilette
Séjour
40 m2
Terrasse
12 m2
Construction : Béton (2006)
État : Excellent
Exposition : Sud
Vue : Terrasse
Chauffage principal : Climatisation réversible
Chauffage complémentaire : Electrique
Alimentation en eau : Eau de ville
Assainissement : Tout à l'égout
Proximité
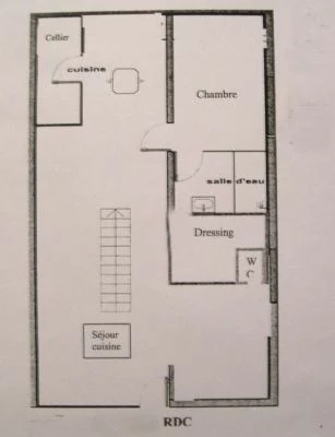
| Pièce | Surface | Informations |
|---|---|---|
| Séjour / Salle à manger | 40 m2 |
|
| Cuisine équipée | 12 m2 |
|
| Arrière cuisine | 4.07 m2 |
|
| Toilettes | 1.04 m2 |
|
| Chambre 1 | 17.2 m2 |
|
| Dressing | 4.82 m2 |
|
| Terrasse | 12 m2 |
|
| Pièce | Surface | Informations |
|---|---|---|
| Dégagement | 4.82 m2 |
|
| Bureau | 17.2 m2 |
|
| Chambre 2 | 12.5 m2 |
|
| Chambre 3 | 10.6 m2 |
|
| Salle de bains | 7.1 m2 |
|
| Toilettes | 1.2 m2 |
|






