- 5 Rooms
- 3 Bedrooms
- 2 Bathrooms
- 115 m2
- Building 2012
Description
Living space : 115 m2 approx.
5 rooms /
3 bedrooms /
1 Bathroom
1 Bathroom
1 Toilet
Living room
58 m2
Ground
769 m2
Terrace
80 m2
Garage
25 m2
Dependencies
3 m2
Building : Midle traditional (2012)
State : Excellent
Exposure : South-West
View : Garden
Pool dimensions :
7 par 3.3
Main heating : Reversible air-conditioning
Water : Water of city
Sanitation : Sewage system
Proximity
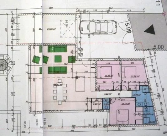
| Room | Surface | Informations |
|---|---|---|
| Living room / Kitchen | 58 m2 |
|
| Release | 4.22 m2 |
|
| Laundry | 2.2 m2 |
|
| Room 1 | 18.2 m2 |
|
| Room 2 | 12.8 m2 |
|
| Room 3 | 12.8 m2 |
|
| Toilets | 1.36 m2 |
|
| Bathroom | 5.8 m2 |
|
| Garage | 25 m2 |
|





